1626 E. Jefferson Exterior (with YAA Branding)-upscale.png

BUILDING DREAMS

A Home for Young Artists to Thrive

As Young Artists of America continues to grow, so does the urgency for a permanent home to meet the needs of our students and programs.

To bring this vision to life, we are launching the Building Dreams Campaign — an $8 million fundraising initiative to establish a state-of-art rehearsal facility on Rockville Pike and to ensure YAA remains accessible to students from all backgrounds.

This space will become Montgomery County’s first Collaborative Performing Arts Hub, serving both YAA students as well as the broader local arts community.

The Challenge

For nearly 15 years, YAA has fostered a nurturing and inclusive space for young artists to experiment, take risks, and imagine the world through their own unique artistry—all while delivering exceptional training and performances to the community.

Despite not having a dedicated rehearsal space of our own, YAA has become the home for collaborative young artists across the DC metro area. However, we face significant limitations that hinder our growth and impact.

Without a permanent rehearsal space, we rely on a patchwork of short-term, borrowed locations. We also lack a space large enough to accommodate full mainstage rehearsals—which compromises our efficiency, cohesion, and the collaborative experience that is central to our mission.

Our Corner of the Sky

We have identified 1626 East Jefferson Street in Rockville, Maryland as the future home for YAA.

Located in The Offices at Congressional Plaza, this prime space sits in the heart of Rockville Pike—a thriving hub of dining, retail, and entertainment.

Within 25 minutes from downtown Washington DC and adjacent to the new Twinbrook Quarter, it is easily accessible by Metro and offers ample free on-site parking, making it both convenient and centrally located minutes from our home stage at Strathmore. 

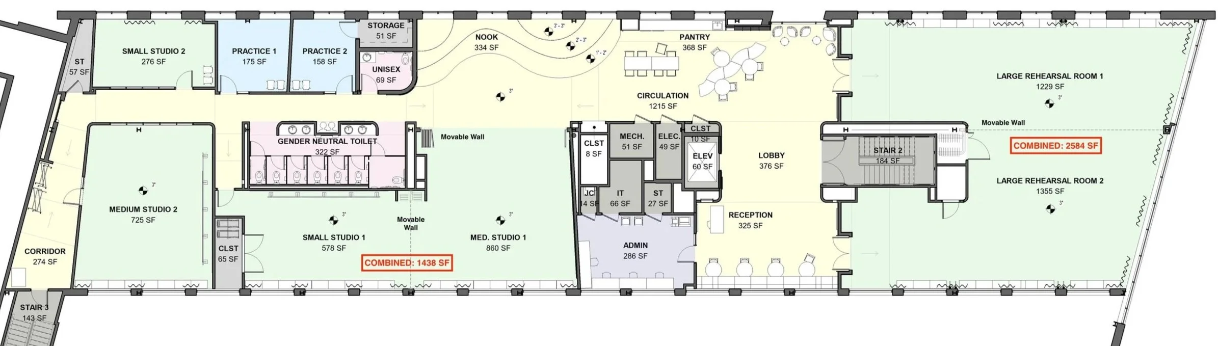
The Room Where it Happens

Test fit (2024)

10,604 total sq ft

  • 8,000 sq ft rehearsal space

  • 9 large, medium, and small rehearsal studios

  • Student lounge and community space

  • 120+ free on-site parking spaces

  • Short walk from Twinbrook Metro

  • Montgomery County’s first collaborative performing arts hub

Take a Virtual Tour

Renowned architecture firm, Grimm + Parker has been hired to design an elevated space with specialty flooring and acoustic treatments that will enhance the quality of the student experience.

Here, we’ll be able to bring our entire artist community together under one roof for rehearsals for the first time in YAA’s history.

This dedicated space will also create new opportunities to grow our revenue by offering additional classes, hosting special events, and making the space available for rentals to the broader arts community. 

The Design

The Design (2026)

Bring Us Home

The Building Dreams Campaign will transform this blank canvas into a dynamic home we can truly call our own.

We’re thrilled to share that we are over halfway to our goal!

To date, $2.6 million has been secured, including $1.6 million in generous contributions from private donors plus a $1 million commitment from our landlord for the buildout. This investment demonstrates a strong belief in YAA’s mission and the long-term value of our new home. We also anticipate an additional $1.5 million from the State of Maryland in 2026.

To reach our goal, we need to raise an additional $3.9 million to complete renovations and invest in the infrastructure to sustain YAA into the future.

Join Us

Join this once-in-a-generation opportunity to shape the future of Young Artists of America and the local arts community. By coming together to support the Building Dreams Campaign, you will help secure YAA’s future and amplify its impact for generations to come.

The heart of our work is the belief that excellence in artistry is attainable through collaboration and disciplined hard work. The lessons students learn here—about dedication, community, joy in music and stagecraft, and the power of a strong work ethic—stay with them for life. We invite you to be a part of this transformative journey!

Together, we can provide a home for young artists to thrive.

Ways to Give

  • Make a one-time gift online or by check

  • Make a multi-year pledge (up to 3 years)

  • Donate appreciated stock

  • Engage your company in a corporate sponsorship or matching gift

  • Give through a Donor Advised Fund (DAF)

  • Make a Qualified Charitable Distribution (QCD) from an IRA (for individuals 70½+)

  • Name a space in honor of a student, family member, business or loved one

Gifts of $10,000 and above will be recognized on a special donor wall in the lobby of our new facility. Select Naming Opportunities are available for contributions of $50,000 and above. All gifts and pledges are payable through 2027.

Being a part of YAA has truly changed my life and the training I’ve received has been transformative. I’ve been extremely fortunate to receive a scholarship each year. As I head to Emerson College in Boston to pursue Musical Theatre, I see YAA as a place I can always come home to.

— LUKA VAN HERKSEN, Class of ‘25

Campaign Leadership

Young Artists of America is grateful for the generosity and enthusiasm of our Building Dreams Campaign leadership. Their commitment is not only an investment in our organization, but in the young instrumentalists, singers, actors, and dancers we are privileged to serve. Thanks to their visionary support, we are able to secure YAA’s future and amplify our impact for generations to come.

Honorary Co-Chairs

Campaign Committee

Campaign Donors

With profound gratitude, we recognize the donors whose generosity is making this campaign possible.

  • $1,000,000+

    State of Maryland

  • $500,000-$999,999

    Anonymous

  • $250,000-$499,999

    Anonymous

    Alfred (Brad) Clark

  • $100,000-$249,999

    Ollen & Julia Douglass

    Richard Gervase & Stuart Delery

    Ed, Shelley, and David Grossman and the Bill Grossman Fund of the Grossman Family Charitable Funds

    Lori Laitman & Bruce Rosenblum

    Carol Trawick

  • $50,000-$99,999

    Anonymous (2)

    Miriam Fishman & Andrew Goldsmith

    Jared & Alanna Kotler

  • $25,000-$49,999

    The Susswein Family

    Maya Weil

  • $10,000-$24,999

    Anonymous (2)

    Bernard Family Foundation

    Meg & John Hauge

    Jamie Joeyen-Waldorf & Family

    The Johnsen Family

    Susan & Arnie Lutzker

    Elizabeth & Jonathan McAllister

    Elvi Moore

    Craig Pascal

    Sonya Sbar & Alec Rogers

    Jacquie & Rolando Sanz

  • $5,000-$9,999

    Thomas & Judy Bailey

    Tom DiGiovanni & Patrick O’Donnell

    Sarah Jackson-Han, in honor of Gillian (‘15) & Genevieve Jackson Han

    Lisa Larragoite & Tom Kohn

    Stefanie Morgan-Davis & Nikel Davis

    Erin Pelton & Miguel Estien

  • $2,500-$4,999

    Anonymous

    The Davies Foundation

    Erin Pelton and Miguel Estien

    Kent Killelea

    Harita and Dheepak Raja

    The Spigler Family

  • $1,000-$2,499

    Anonymous

    Helena Dimitriou and Jim Burkhard

    Erkan Erdem

    Pat & Patsy Fahey

    Susan Kelly & Kelly Strategies

    Kent Killelea

    Eve A. Lilley

    Kathy McGuire (in honor of Elvi Moore)

    George Montague & Nan Draher

    Jeremy & Emily Rachlin

    Sebastian Schroth & Family

  • $250 to $999

    Anonymous (2)

    Carol & John Boochever

    Audrey Bredhoff

    Peter D. Cook

    Michael Fleming

    Bob Levey

    Phyllis Milder

    The Mohtat Family

    Amy Padre

    Janet Shatz

    Hannah Sloss

    Richard David Smith

    Reginald Stanley

Timeline

Building Dreams FAQs

  • Our new home is centrally located on Rockville Pike, just minutes from our performance home at Strathmore. It's easily accessible by Metro (Twinbrook) and public transportation, offers free on-site parking, and sits adjacent to Congressional Plaza in a thriving hub of dining, retail, and entertainment—making it convenient for families across the DC metro area.

  • We’re planning for an opening in the first half of 2027.

  • Our performances will continue to take place at Strathmore and other major area performance venues as scheduled. This facility is dedicated to rehearsals, classes, and community programming, enhancing—not interrupting—what we do.

  • Yes! We will be setting up site visits in the coming weeks that you can sign up for. Stay tuned!

  • Yes! Young Artists of America is a registered 501(c)3 nonprofit organization (EIN: 45-0643746). Donations are tax-deductible to the full extent of the law.

  • Yes! All gifts and pledges are payable through 2027.

  • Gifts of $10,000 and above will be recognized on a special donor wall in the lobby of our new facility. Select Naming Opportunities are available for contributions of $50,000 and above.

  • Yes! We welcome corporate gifts or sponsorships. Please contact us to discuss opportunities.

  • We'd love to speak with you! Please contact:

For more information about YAA and the Building Dreams Campaign:

Rolando Sanz, Producing Artistic Director & Co-Founder
rolando@yaa.org

Lisa Larragoite, Executive Director 
lisa@yaa.org

Connect

Young Artists of America is a registered 501(c)3 nonprofit organization. Our EIN is 45-0643746. Donations are tax-deductible to the full extent of the law.